聯係方式 |
| 電話(市場部):0517-86851868 |
| |
| |
| (拓展部): |
| 傳真: |
節假日商務聯係電話:
何經理:
紀經理: |
| 郵編:211600 |
| 網址:http://www.007gupiao.cn/ |
| http://www.sukeyb.com/ |
| E-mail: |
| |
地址:江蘇省金湖縣工業園區環城西
路269號 |
|
|
 |
您現在的位置 > 首頁 > 行業新聞 > 氣體渦輪流量計工作原理與結構 |
氣體渦輪流量計工作原理與結構 |
氣體渦輪流量計工作原理
當(dang)被(bei)測(ce)流(liu)體(ti)流(liu)經(jing)傳(chuan)感(gan)器(qi)時(shi),傳(chuan)感(gan)器(qi)內(nei)的(de)葉(ye)輪(lun)借(jie)助(zhu)於(yu)流(liu)體(ti)的(de)動(dong)能(neng)而(er)產(chan)生(sheng)旋(xuan)轉(zhuan),葉(ye)輪(lun)即(ji)周(zhou)期(qi)性(xing)地(di)改(gai)變(bian)磁(ci)電(dian)感(gan)應(ying)係(xi)統(tong)中(zhong)的(de)磁(ci)阻(zu)值(zhi),使(shi)通(tong)過(guo)線(xian)圈(quan)的(de)磁(ci)通(tong)量(liang)周(zhou)期(qi)性(xing)地(di)發(fa)生(sheng)變(bian)化(hua)而(er)產(chan)生(sheng)電(dian)脈(mai)衝(chong)信(xin)號(hao),經(jing)放(fang)大(da)器(qi)放(fang)大(da)後(hou)進(jin)行(xing)顯(xian)示(shi)或(huo)傳(chuan)送(song)至(zhi)相(xiang)應(ying)的(de)流量積算儀表、PLC或上位計算機,進行流量或總量的測量。
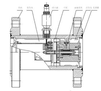
氣體渦輪流量傳感器的基本結構
傳感器的基本結構如圖所示,它主要由殼體、前導向架、葉輪、後導向架、壓緊圈、加油係統(DN40以上)和放大器或顯示轉換器等組成:

|
|